top of page

Projects
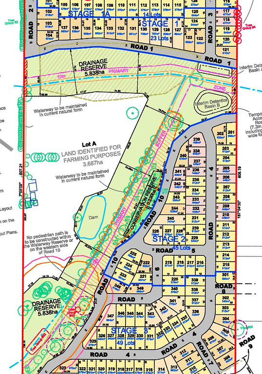
Development / Land
295 Warragul-Lardner Road, Warragul South, VIC 3821








Please note that the information on this website is provided for general reference only. All development opportunities are subject to Council Approval (STCA).

LET'S WORK TOGETHER!
If you require any further information regarding our services, please contact us via one of the following options.
VISIT US
Level 26, 360 Collins Street
Melbourne VIC 3000
EMAIL US
CALL US
+61 3 9000 4188
bottom of page
